Каталог
Типовые проектыХарактеристики
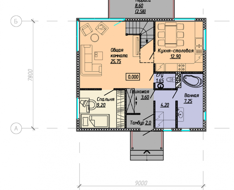
Площадь дома – 125 м2Стоимость базового комплекта – 115 000 рублей
Стоимость под чистовую отделку – 240 000 рублей
Описание проекта
Компактный двухэтажный каркасный дом классического дизайна. Небольшая терраса, просторная гостиная, два санузла, удобная планировка. Возможно как постоянное, так и временное проживание.
*Тип и цвет фасада, кровли, а также наружной декоративной отделки даны для общего представления.







