Каталог
Типовые проектыХарактеристики
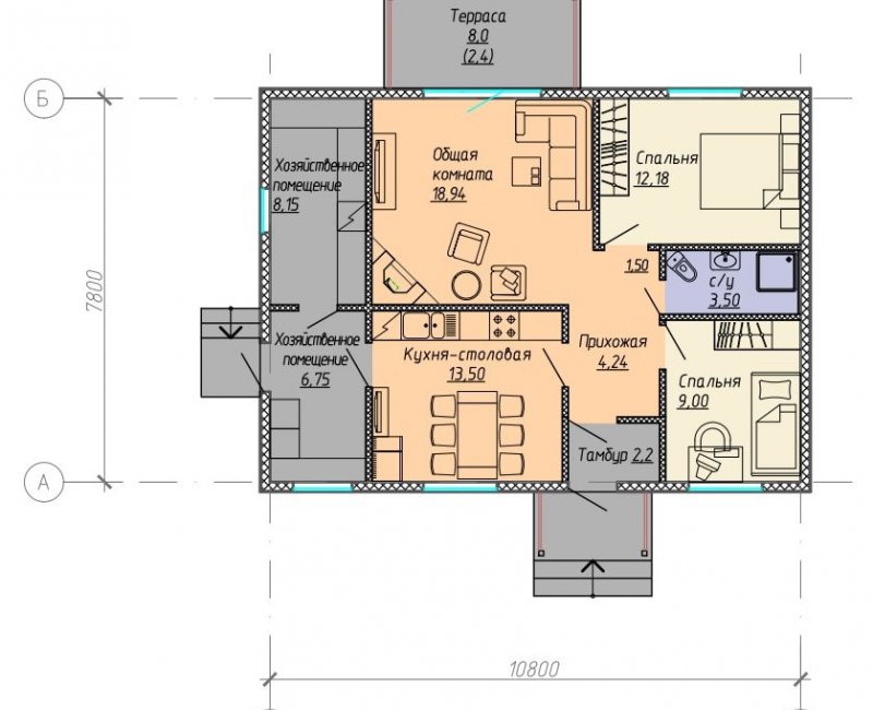
Площадь дома – 92 м2Стоимость базового комплекта – 85 000 рублей
Стоимость под чистовую отделку – 180 000 рублей
Описание проекта
Небольшой уютный дом для семьи из 2-3 человек. Открытая терраса, большие окна создают ощущение большого пространства в доме. Возможно постоянное или временное проживание. По желанию заказчика возможно внесение изменений в проект.
*Тип и цвет фасада, кровли, а также наружной декоративной отделки даны для общего представления.






