Каталог
Типовые проектыХарактеристики
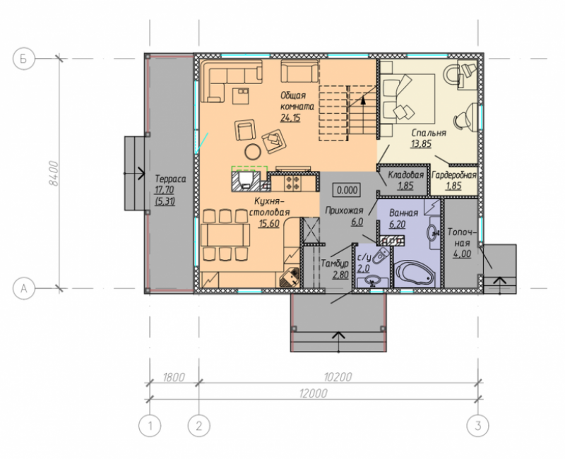
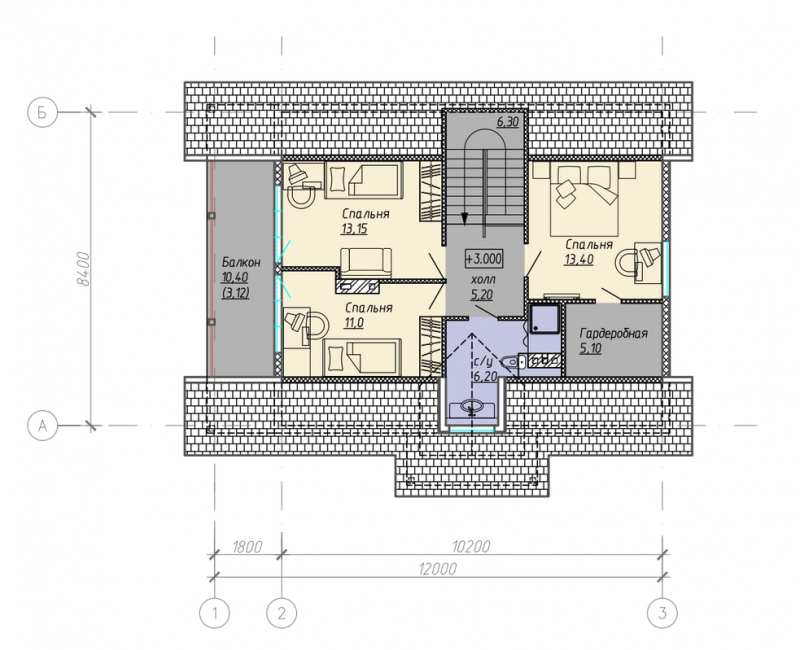
Площадь дома – 188 м2Стоимость базового комплекта – 175 000 рублей
Стоимость под чистовую отделку – 370 000 рублей
Описание проекта
Просторный двухэтажный каркасный дом для большой семьи. Большая терраса, балкон, мансардные окна, функциональная планировка. В этом доме каждый найдет для себя уютное пространство.
*Тип и цвет фасада, кровли, а также наружной декоративной отделки даны для общего представления.







