Каталог
Типовые проектыХарактеристики
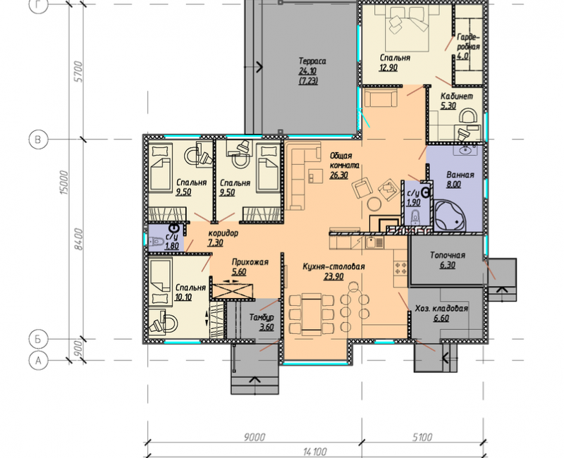
Площадь дома – 192 м2Стоимость базового комплекта – 180 000 рублей
Стоимость под чистовую отделку – 380 000 рублей
Описание проекта
Большой одноэтажный каркасный дом для семьи из 3-4 человек. Классический дизайн подойдет как для молодых людей, так и для старшего поколения. Теплый, уютный, компактный, с открытой террасой. Возможно проживание как временное, так и постоянное.
*Тип и цвет фасада, кровли, а также наружной декоративной отделки даны для общего представления.






