Каталог
Типовые проектыХарактеристики
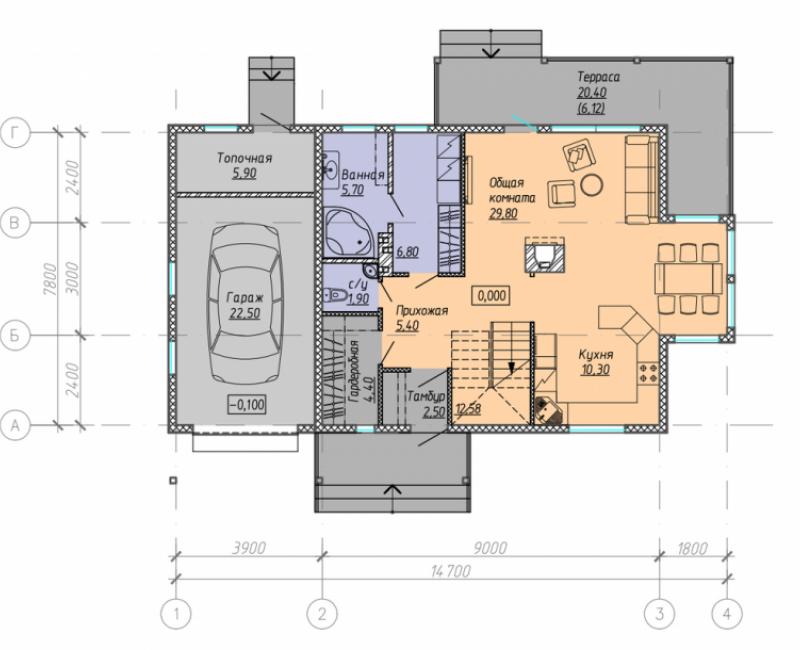
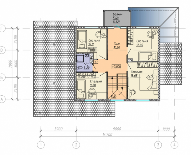
Площадь дома – 210 м2Стоимость базового комплекта – 190 000 рублей
Стоимость под чистовую отделку – 410 000 рублей
Описание проекта
Двухэтажный компактный каркасный дом с гаражом на один автомобиль. Большая терраса, балкон, большие окна. Очень удобный для семьи из 3-4 человек. Прекрасно подойдет для загородной спокойной жизни.
*Тип и цвет фасада, кровли, а также наружной декоративной отделки даны для общего представления.







