Каталог
Типовые проектыХарактеристики
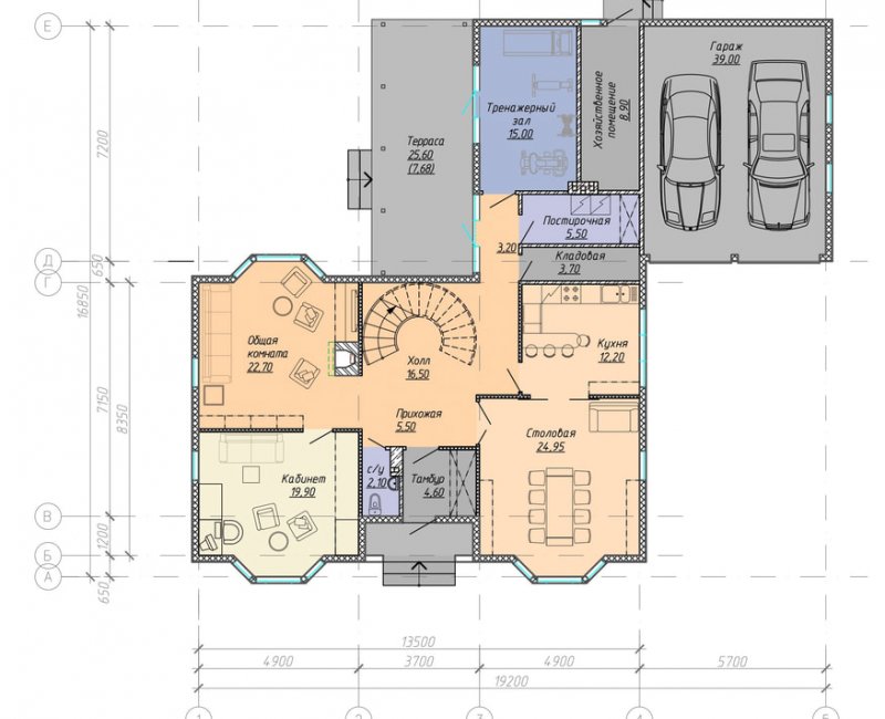
Площадь дома – 350 м2Стоимость базового комплекта – 360 000 рублей
Стоимость под чистовую отделку – 750 000 рублей
Описание проекта
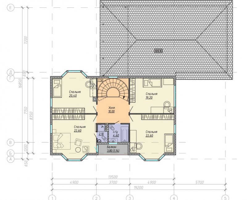
Большой двухэтажный каркасный дом с гаражом на два автомобиля подойдет для большой семьи. Здесь будет комфортно и для совместного проживания нескольких поколений семьи. Просторный холл на 1 этаже, столовая в общем пространстве с кухней, два санузла, 4 спальни на 2 этаже. По индивидуальному проекту возможно изменение планировки и назначения помещений.
*Тип и цвет фасада, кровли, а также наружной декоративной отделки даны для общего представления.







