Каталог
Типовые проектыХарактеристики
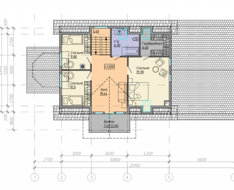
Площадь дома - 246 м2, в том числе гараж – 55,5 м2Стоимость базового комплекта – 215 000 рублей
Стоимость под чистовую отделку – 480 000 рублей
Описание проекта
Большой двухэтажный каркасный дом с гаражом на два автомобиля и большими кладовыми. Теплый, просторный, уютный. В нем есть всё для комфортной жизни семьи из 3-4 человек. Также в нем хватит места разместить ваших близких людей на выходные или семейные праздники.
*Тип и цвет фасада, кровли, а также наружной декоративной отделки даны для общего представления.







