Каталог
Типовые проектыХарактеристики
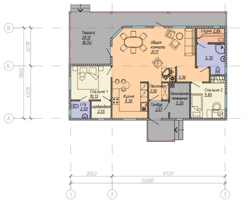
Площадь дома - 120 м2Стоимость базового комплекта – 110 000 рублей
Стоимость под чистовую отделку – 240 000 рублей
Описание проекта
Каркасный дом, который создан для семейного отдыха. Светлый, уютный и комфортный дом с высокими потолками, вторым светом, встроеной сауной. Большая гостиная и смежная с ней терраса станут прекрасным местом для общения с близкими людьми.
*Тип и цвет фасада, кровли, а также наружной декоративной отделки даны для общего представления.






