Каталог
Серия СкандикХарактеристики
Площадь дома – 174 м2Стоимость базового комплекта – 155 000 рублей
Стоимость под чистовую отделку – 350 000 рублей
Описание проекта
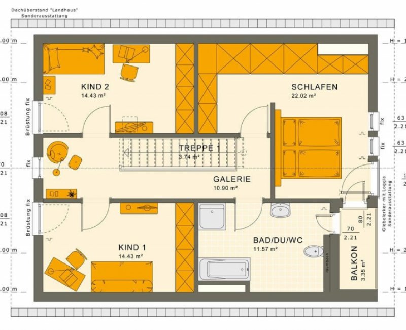
Скандик 5 — это современный дом на одну семью с классической двускатной крышей, двускатным эркером, лоджией и балконом. В частности, план этажа с прямой лестницей и просторной планировкой делают Скандик 5 идеальным местом для всей семьи. На первом этаже достаточно места для открытой гостиной и столовой с примыкающей кухней и отдельным кабинетом. На верхнем этаже запланированы две детские комнаты и большая спальня с гардеробной. Современный дизайн данного дома предлагает множество возможностей для индивидуального дизайна.
*Тип и цвет фасада, кровли, а также наружной декоративной отделки даны для общего представления.



