Каталог
Серия СкандикХарактеристики
Площадь дома – 155 м2Стоимость базового комплекта – 140 000 рублей
Стоимость под чистовую отделку – 330 000 рублей
Описание проекта
Дом с двускатной крышей Скандик 2 уже снаружи демонстрирует некоторые особенности и особое очарование. Внутри дом впечатляет удобной планировкой.
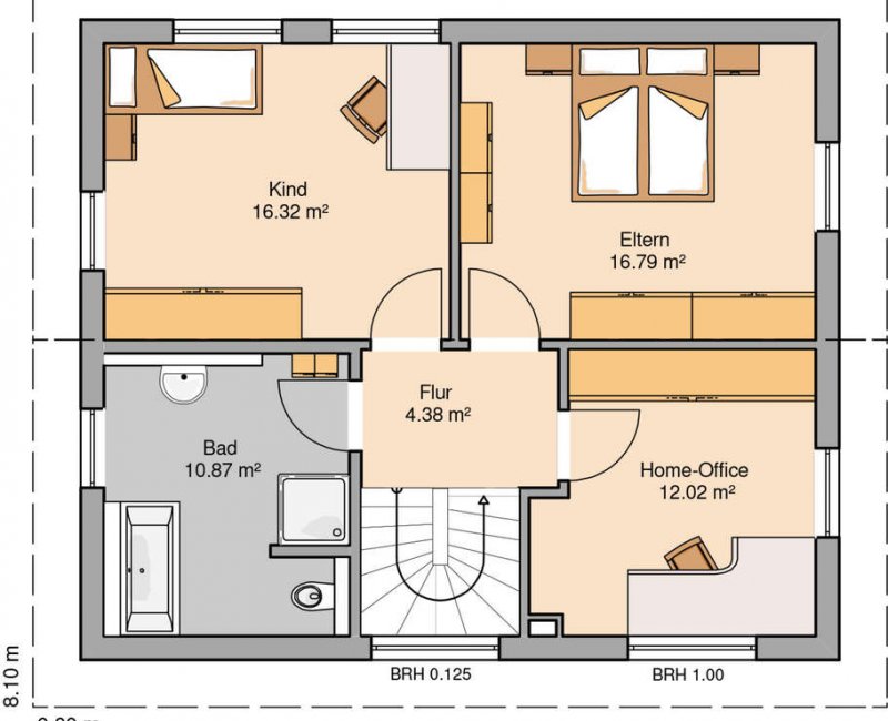
На первом этаже семейного дома располагается кухня, просторная гостиная и столовая с окнами от пола до потолка, есть гостевой туалет и прихожая с гардеробом. Подсобное помещение с прямым выходом в сад добавляет практичности. На верхнем этаже жильцам доступны большие отдельные комнаты. Детская и родительская спальни предлагают более 16 квадратных метров жилой площади каждая. В третьей комнате может быть размещен кабинет. На этаже также располагается семейная ванная комната.
*Тип и цвет фасада, кровли, а также наружной декоративной отделки даны для общего представления.




